top of page
APPARTEMENT // 17M2 // PARIS 19
APPARTEMENT // 17M2 // PARIS 19
APPARTEMENT // 90M2 // ANNECY
APPARTEMENT // 90M2 // ANNECY
PARIS 17
Appartement
- PROGRAMME -
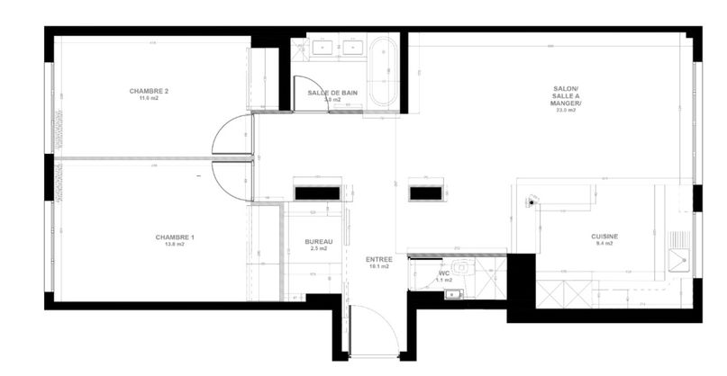
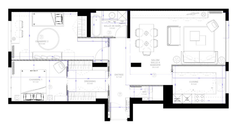
Réorganisation et rénovation complète d'un appartement de 75m 2. Optimisation des espaces. Agrandissement des pièces et ajouts de nombreux rangements.
- MISSION -
Organisation générale de l'espace, proposition d'ambiance, dessin du mobilier, réalisation des plans et des dossiers techniques, gestion du chantier.
- PROJET -

50
M2
bottom of page















